Mokotów / 1 lub 2 pokoje po remoncie

Mieszkanie na sprzedaż
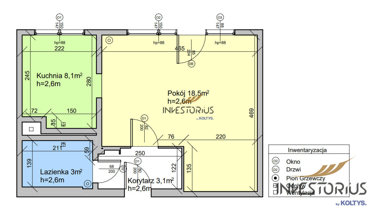
539 000,00 PLN , Pow. 33 m2
Drukuj ofertę
Drukuj ofertę
Typ nieruchomości:
Mieszkanie
Powierzchnia:
33 m2
Typ transakcji:
sprzedaż
Liczba pokoi:
1
Lokalizacja:
Warszawa Mokotów , Portofino
Rok budowy:
1978
Piętro:
3 na 10
Numer oferty:
775759
Cena za m2:
16 333,33 PLN
Mokotów / 33m2 / 3 piętro / gotowe do wprowadzenia się / osobna kuchnia /
TYLKO W INVESTORiUS!!

MIESZKANIE
Na sprzedaż mieszkanie znajdujące się na 3 piętrze w zadbanym bloku mieszkalnym. Składa się z przestronnego, jasnego pokoju z dużymi oknami, które zapewniają naturalne światło przez cały dzień. Kuchnia jest oddzielna, wyposażona w sprzęt RTV i AGD. Mieszkanie po niedawnym remoncie, niezamieszkałe, nadające się do natychmiastowego wprowadzenia. Do mieszkania przynależy piwnica ok.2m2 oraz balkon francuski. Parking tuż przy budynku. Powierzchnia mieszkania według inwentaryzacji wynosi niecałe 33m2( w dokumentach spółdzielni zawarte jest 31m2). Grunty pod budynkiem są nieuregulowane.

LOKALIZACJA
Do najbliższego przystanku autobusowego zaledwie 80m. W zasięgu 400m powstaje linia tramwajowa. Tuż przy budynku znajduje się pełna infrastruktura: sklepy, szkoły, przedszkola, parki, punkty gastronomiczne czy apteka. To idealne mieszkanie dla singla, pary lub jako inwestycja pod wynajem.

ZADZWOŃ! 7 dni w tygodniu 8:00 - 24:00
tel.663 344 777

WYŁĄCZNY OPIEKUN OFERTY
Kacper Wydra
Doradca ds. nieruchomości
INVESTORiUS
Nieprawidłowy adres E-mail