3 pokoje/ ogródek 60m2/ ochota/ nowe budownictwo

Mieszkanie na sprzedaż
1 370 000,00 PLN , Pow. 62,10 m2
Typ nieruchomości:
Mieszkanie
Powierzchnia:
62,10 m2
Typ transakcji:
sprzedaż
Liczba pokoi:
3
Lokalizacja:
Warszawa Ochota Szczęśliwice , Włodarzewska
Rok budowy:
2012
Piętro:
0 na 3
Numer oferty:
869492
Cena za m2:
22 061,19 PLN
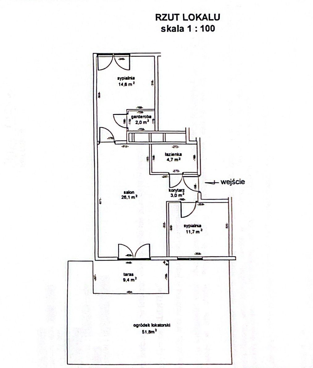
Mam przyjemność zaprezentować Państwu funkcjonalne mieszkanie z dużym ogródkiem, położone tuż obok Parku Szczęśliwickiego. Blok został wybudowany w 2012 roku przez dewelopera Bouygues Immobilier.

W skład mieszkania wchodzą:

- przestronny salon połączony z aneksem kuchennym,
- dwie sypialnie,
- łazienka z pełnym wyposażeniem,
- taras z ogródkiem o łącznej powierzchni 60 m² - idealne miejsce na relaks, posiłki na świeżym powietrzu i spotkania z bliskimi,
- w pełni wyposażona kuchnia ze sprzętem.

Do mieszkania przynależy również:

miejsce w garażu podziemnym - dodatkowo płatne 60 000 zł,
komórka lokatorska - dodatkowo płatna 20 000 zł.

Lokalizacja:
To miejsce łączy ciszę i zieleń z wygodą miejskiego życia. Do centrum komunikacją miejską dostaniemy się w 30 min. W bliskim sąsiedztwie mieszkania znajdziemy: piekarnie, sklepy, bazarek, Park Szczęśliwicki, szkołę podstawą, restauracje.

To mieszkanie to idealna propozycja dla osób ceniących komfort, bliskość natury oraz doskonałą komunikację z resztą miasta.

Wyłączny opiekun ofert:
Patryk Piwoński
Specjalista ds.nieruchomości INVESTORiUS
tel. 794 199 621
Zapraszam do kontaktu 7 dni w tygodniu w godzinach 7:00-22:00
Nieprawidłowy adres E-mail