Cichy Loft na Muranowie/Metro

Mieszkanie na sprzedaż
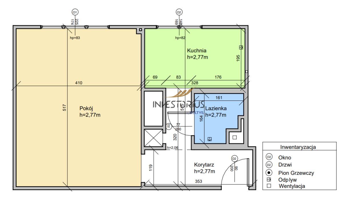
749 000,00 PLN , Pow. 37,50 m2
Typ nieruchomości:
Mieszkanie
Powierzchnia:
37,50 m2
Typ transakcji:
sprzedaż
Liczba pokoi:
1
Lokalizacja:
Warszawa Śródmieście Muranów , Józefa Lewartowskiego
Rok budowy:
1962
Piętro:
0 na 4
Numer oferty:
664437
Cena za m2:
19 973,33 PLN
*Na sprzedaż urocze mieszkanie w doskonałej lokalizacji na Muranowie*

Posiadamy do zaoferowania atrakcyjne mieszkanie o powierzchni 37,5 m² położone przy ul. Lewartowskiego 4 na spokojnym Muranowie w dzielnicy Śródmieście Północne.

Mieszkanie znajduje się na wysokim parterze i cechuje się wysokością pomieszczeń na poziomie 290 cm, co dodaje wnętrzu specjalnego charakteru.

**Szczegóły nieruchomości**
Lokal składa się z pokoju, kuchni, przedpokoju oraz łazienki i jest idealny dla osób ceniących klimaty loftowe. Mieszkanie jest w stanie dobrym, gotowe do wprowadzenia, z możliwością delikatnego remontu wedle indywidualnych potrzeb nowego właściciela. W ostatnich latach wymieniono okna oraz instalację elektryczną.

Budynek został zbudowany w 1962 roku, zbudowany z cegły. Elewacja, oraz instalacja elektryczna po wymianie. 

**Lokalizacja**
Lokalizacja gwarantuje doskonałą komunikację z resztą miasta - tylko 13 minut piechotą do stacji metra Dworzec Gdański, 5 minut do najbliższej linii tramwajowej oraz 6 minut do przystanku autobusowego. Do centrum Warszawy można dojechać w zaledwie 10 minut.

Muranów to dzielnica cicha i pełna zieleni, idealna dla osób szukających spokoju w sercu miasta, a jednocześnie blisko jego kulturalnego i biznesowego centrum.

** Cena: 797 000 zł. **

Serdecznie zapraszamy do kontaktu w celu umówienia pokazu nieruchomości i omówienia szczegółów tej wyjątkowej oferty.

Zapraszam do kontaktu i umówienia się na prezentację!

WYŁĄCZNY OPIEKUN NIERUCHOMOŚCI
Piotr Gawroński
INVESTORiUS
Nieprawidłowy adres E-mail