Kawalerka lub dwa pokoje ze świetnym widokiem!

Mieszkanie na sprzedaż
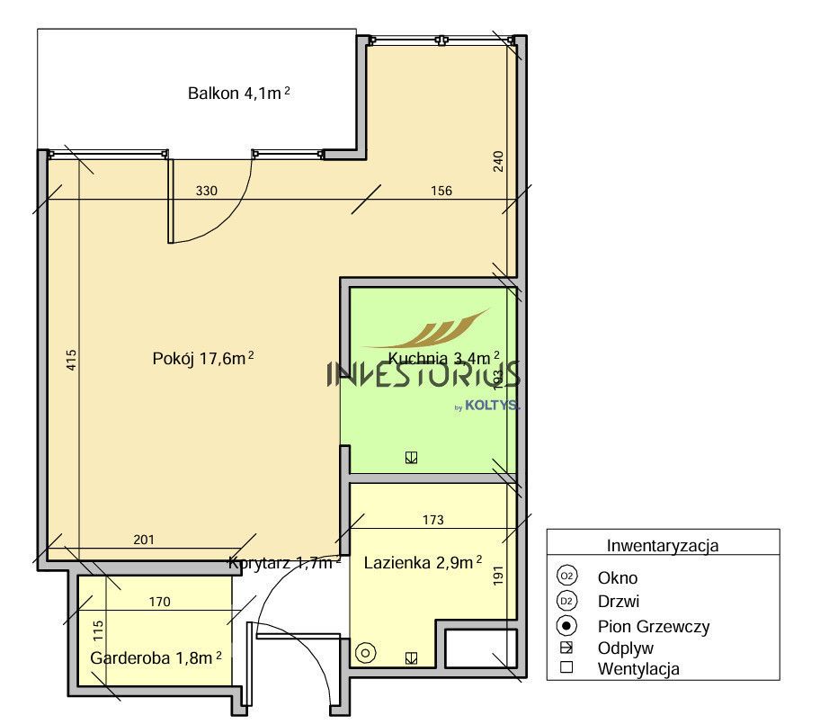
569 000,00 PLN , Pow. 27,50 m2
Drukuj ofertę
Drukuj ofertę
Typ nieruchomości:
Mieszkanie
Powierzchnia:
27,50 m2
Typ transakcji:
sprzedaż
Liczba pokoi:
2
Lokalizacja:
Warszawa Śródmieście , Górnośląska
Rok budowy:
1969
Piętro:
10 na 10
Numer oferty:
705473
Cena za m2:
20 690,91 PLN
*Urocza kawalerka z oddzielną strefą sypialnianą na Solcu, Śródmieście*

Mamy przyjemność zaoferować kawalerkę o powierzchni 27,5m², zlokalizowaną w doskonałym punkcie komunikacyjnym na Solcu. Mieszkanie znajduje się na 10. piętrze w budynku z lat 70tych. Z mieszkania rozciąga się rewelacyjny widok na okolicę oraz Stadion Legii Warszawa.

*Szczegóły nieruchomości*
Mieszkanie składa się z przestronnego pokoju dziennego z wydzieloną strefą sypialnianą, co zapewnia komfort oraz prywatność, kuchni, łazienki a także z garderoby o powierzchni niecałych 2m². Dodatkowym atutem jest duży balkon, na którym można cieszyć się poranną kawą, podziwiając panoramę miasta.

Mieszkanie jest po remoncie przeprowadzonym w 2018 roku. Wymienione zostały również instalacje elektryczne.

Spółdzielcze własnościowe prawo do lokalu z możliwością założenia Księgi Wieczystej, grunty uregulowane. Możliwość kredytowania nieruchomości.

Link do wirtualnego spaceru : https://kuula.co/share/collection/718R1?logo=0&info=1&fs=1&vr=1&sd=1&thumbs=1

*Lokalizacja*
Nieruchomość położona jest w jednej z najlepiej skomunikowanych części miasta, z przystankiem autobusowym oddalonym zaledwie o 270 m, co zapewnia szybki i wygodny dojazd do centrum Warszawy (około 10 minut do Dworca Centralnego). W bezpośrednim sąsiedztwie znajdują się wszystkie niezbędne udogodnienia: przychodnia państwowa (130 m), Biedronka (150m), Ośrodek Rozbrat (290 m), Poczta (750 m), Torwar (850 m) oraz Stadion Miejski Legii Warszawa (800 m), Park im. Marszałka Edwarda Rydza-Śmigłego (700m) oraz kościół (250m)

Solec to wyjątkowa lokalizacja - spokojna, pełna zieleni, a jednocześnie blisko największych atrakcji miasta i jego infrastruktury.

Cena: 569 000 zł.

Zapraszam do kontaktu i umówienia się na prezentację!

WYŁĄCZNY OPIEKUN OFERTY
Kacper Wydra
663 344 777
INVESTORiUS Sp. z o.o.
Nieprawidłowy adres E-mail